Verkocht onder voorbehoud:Voorthuizerstraat 17, 3881 SB Putten - Foto
Verkocht onder voorbehoud
+75

Voorthuizerstraat 17 3881 SB Putten € 695.000,- k.k.

  • 4 kamers
  • 3 slaapkamers
  • 1 badkamers
  • Bouwjaar 1938
  • 520 m² perceeloppervlakte
  • 125 m² gebruiksoppervlakte
  • Gestoffeerd
  • C Energielabel C

Beschrijving

Een uitgebouwde TWEE-ONDER-EEN KAP-woning uit 1938 met uitstraling op een prachtige locatie dicht bij het gezellige centrum van Putten maar toch ook rustig gelegen. De woning heeft een woonoppervlakte van 125 m2 en is voorzien van een grote slaapkamer en een vernieuwde badkamer op de begane grond! Daarbij heeft de woning een heerlijk groot perceel van maar liefst 520 m2! Aan de voorzijde heeft de woning een prachtige sierlijke tuin samen met de buren en daardoor staat de woning ook wat van de weg af en is daarbij voorzien van een fijne grote oprit. De achtertuin is heerlijk omsloten, gelegen op het zuid-oosten en voorzien van een prachtige veranda over de gehele breedte van de tuin. De woning is de afgelopen jaren grotendeels gemoderniseerd en voorzien van een nieuwe keuken en een nieuwe badkamer. Aan de achterzijde is de uitbouw van de woning volledig vernieuwd en geïsoleerd en nu voorzien van een fijne werkplek. Aangebouwd is er nog een ruime carport en een fijne extra stenen berging. De woning is geschikt voor een gezin met 3 ruime slaapkamers maar ik vind de woning ook geschikt voor de wat oudere doelgroep die graag een woonprogramma op de begane grond wil en nog wil genieten van een fijne tuin.
Daarbij is het echt een woning met karakter, voorzien van nog mooie snijvoegen, luiken, overstekken en echt die jaren 30 uitstraling. Prachtig! Alle vernieuwingen aan de woning zijn met zorg gedaan waardoor de uitstraling van destijds is gebleven maar wel in een modern jasje. Het is een speelse woning met een niet alledaagse inrichting. Ik neem je graag mee!

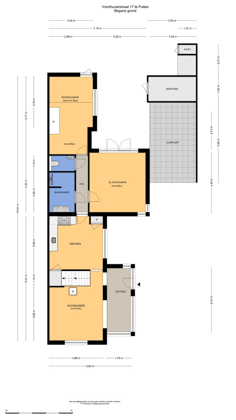
We gaan naar binnen via de mooie zwarte voordeur waar we binnen komen in een open ruimte die ook verbonden is met de woonkamer. Deze ruimte is uitgebouwd met lekker veel raampartijen en dus veel daglicht! De grote stoel verraadt ook al wel hoe heerlijk en zonnig dit plekje is. De woonkamer is aan de voorzijde gelegen en is heel sfeervol ingericht. De mooie houtkachel, de grove plinten, de mooie kozijnen, het kleurgebruik, de houten vloer.. precies de sfeer die ik ook verwacht had en past bij de woning! Door het hoge plafond en de vele raampartijen is het een fijne ruimte om te verblijven. Via de hal en de woonkamer loop ik door naar de gezellige woonkeuken. Deze keuken is volledig vernieuwd in 2021, passend bij de sfeer van de woning. Heel goed gedaan! En wat een gedurfde kleur! De keuken heeft een mooie hoekopstelling en de eettafel staat fijn bij het raam. Er is via de keuken nog een ruime kelder te bereiken voor lekker veel provisie ruimte en het prachtig stallen van de wijnvoorraad zoals je wel op de foto’s kunt zien. De oude paneeldeuren en ook hier de houten vloer ademen weer sfeer uit. Via de keuken komen we in een tussenhalletje waar ik als eerste richting de mooi uitgebouwde ruimte loop wat als grote slaapkamer is ingericht. Slim! Je loopt via de openslaande deuren zo naar de fijne tuin en je hoeft lekker geen trap op! Tegenover de slaapkamer is de vernieuwde badkamer met een grote wastafelmeubel en een ruime inloopdouche. Prachtig gedaan! Ook de toiletruimte is volledig vernieuwd en voorzien van een hangend toilet en fonteintje. Wanneer we de hal verder doorlopen naar de achterzijde komen we in de vernieuwde ruimte wat voorheen een aangebouwde berging was. Wat een fijne ruimte met de open kap en oude balken in het zicht! Ook de ingebouwde kast waar ook ruimte is voor de wasmachine en de droger, is perfect afgewerkt. Een multifunctionele ruimte voorzien van vloerverwarming, nu ook in gebruik als werkkamer. Heel slim!

Via de mooie trap in de woonkamer kunnen we naar de eerste verdieping. Hier zijn nog 2 grote slaapkamers gesitueerd en ook in de loop der jaren volledig gemoderniseerd en gezellig ingericht met behoudt van leuke oude kenmerken zoals de paneeldeuren. De kinderen hebben zo heerlijk hun eigen verdieping en er zou zelfs ook een badkamer gerealiseerd kunnen worden, mocht dat een wens zijn. Beide kamers zijn voorzien van een airco. Verrassend is nog de bergruimte onder de kap, via een vlizotrap te bereiken. Deze laat ik uiteraard tijdens een bezichtiging aan je zien.
De tuin is bij deze woning ook echt een geweldig pluspunt. Je hebt heerlijk veel privacy door de diepte van de tuin en de veranda aan de achterzijde van het perceel. Deze veranda is echt een heerlijke ruimte waar de huidige eigenaren ontzettend veel gebruik van maken. De tuin is verder gezellig ingericht en is ook een heerlijke plek om te spelen voor de kinderen en kleinkinderen.

Dit is een woning die je gezien moet hebben om de sfeer echt te proeven! Geen standaard woning, maar een woning met een speelse indeling en verrassende ruimtes. Ik laat het je graag zien! De woning is voorzien van een energielabel C en 12 zonnepanelen. Het geheel is echt goed onderhouden waarbij het buitenschilderwerk in 2023 nog is aangepakt. Welkom!

Kaart

Kenmerken

Overdracht

Referentienummer
00412
Vraagprijs
€ 695.000,- k.k.
Inrichting
Ja
Inrichting
Gestoffeerd
Status
Verkocht onder voorbehoud
Aanvaarding
In overleg
Aangeboden sinds
Vrijdag 7 november 2025
Laatste wijziging
Woensdag 26 november 2025

Bouw

Type object
Woonhuis, eengezinswoning, twee onder een kap woning
Soort bouw
Bestaande bouw
Toegankelijkheid
Mindervaliden
Senioren
Bouwperiode
1938
Dakbedekking
Bitumen
Dakpannen
Type dak
Zadeldak
Isolatievormen
Dakisolatie
Dubbel glas
Muurisolatie
Spouwmuren

Oppervlaktes en inhoud

Perceeloppervlakte
520 m²
Woonoppervlakte
125 m²
Inhoud
535 m³
Oppervlakte overige inpandige ruimten
16 m²
Oppervlakte externe bergruimte
6,5 m²
Oppervlakte gebouwgebonden buitenruimte
20,5 m²

Indeling

Aantal bouwlagen
3 (en 1 kelder)
Aantal kamers
4 (waarvan 3 slaapkamers)
Aantal badkamers
1 (en 1 apart toilet)

Tuin

Type
Achtertuin
Hoofdtuin
Ja
Oriëntering
Zuidoost
Staat
Prachtig aangelegd
Tuin 2 - Type
Voortuin
Tuin 2 - Oriëntering
Noord west
Tuin 2 - Staat
Prachtig aangelegd

Energieverbruik

Energielabel
C

CV ketel

Warmtebron
Gas
Bouwjaar
2016
Combiketel
Ja
Eigendom
Eigendom

Uitrusting

Aantal parkeerplaatsen
5
Aantal overdekte parkeerplaatsen
1
Verwarmingssysteem
Centrale verwarming
Houtkachel
Vloerverwarming (gedeeltelijk)
Ventilatie methode
Mechanische ventilatie
Parkeergelegenheid
Carport
Heeft airco
Ja
Heeft een rookkanaal
Ja
Glasvezelaansluiting aanwezig
Ja
Tuin aanwezig
Ja
Beschikt over een internetverbinding
Ja
Heeft schuur/berging
Ja
Heeft zonnepanelen
Ja
Heeft ventilatie
Ja

Kadastrale gegevens

Kadastrale aanduiding
Putten C 10536
Perceeloppervlakte
520 m²
Omvang
Geheel perceel
Eigendomsituatie
Eigen grond