Verkocht:Havikstraat 16, 3882 JG Putten - Foto
Verkocht
+63

Havikstraat 16 3882 JG Putten

  • 6 kamers
  • 5 slaapkamers
  • 1 badkamers
  • Bouwjaar 1998
  • 136 m² perceeloppervlakte
  • 118 m² gebruiksoppervlakte
  • Gestoffeerd
  • B Energielabel B

Beschrijving

De plek waar je naar zoekt! Een leuke eengezinswoning met een vriendelijke, open uitstraling op een leuke, kindvriendelijke locatie gelegen in de wijk Husselerveld! De woning is in 1998 gebouw, is voorzien aan een erker aan de voorzijde, een uitbouw aan de achterzijde en de tweede verdieping is voorzien van een dakkapel waardoor er hier 2 goede kamers zijn! De gehele woning is verzorgd en gezellig ingericht en goed onderhouden.
Daarbij is de achtertuin ook zeker het benoemen waard! Het betreft een fijne, diepe achtertuin op de middag- en avondzon gelegen en met aan de achterzijde volledige privacy. Wat een luxe!
Het geheel is op een unieke locatie gelegen aan een gezellig woonerf met in het midden een groenperk en een speeltuin voor de kinderen. Hier vind je lekker geen auto voor de deur, maar er is wel voldoende parkeergelegenheid direct om de hoek gelegen. En op de fiets ben je door het tunneltje zo en veilig in het centrum! Ik neem je mee door de woning!
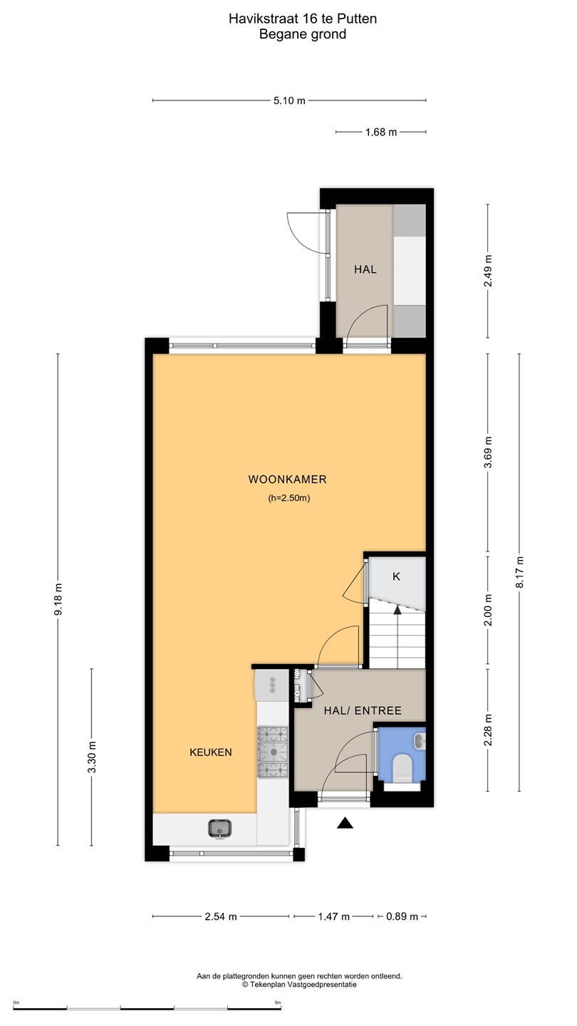
Zoals al gezegd vind ik deze woningen altijd een hele vriendelijke, zonnige uitstraling hebben. Dit komt door de openheid van de erkers aan de voorzijde en de gekozen warme kleur steen. Bij aankomst valt mij meteen op dat ik een verzorgde woning binnenstap met sfeer en gezelligheid. De voordeur is voorzien van een overstek dus je kan lekker droog binnen stappen. De hal is goed van formaat waarbij linksom meteen de vernieuwde toiletruimte is gesitueerd met hangend toilet en mooie wastafel, afgewerkt met prachtige tegels. Via een deur met glas lopen we de living binnen waarbij de keuken aan de voorzijde is gelegen en de woonkamer aan de achterzijde. Een brede leefruimte met grote raampartijen! Door de uitgebouwde erker aan de voorzijde is de hoekkeuken echt ruim van opzet en daarbij voorzien van een hoog blad. Hier kan je fijn naar buiten. De keuken is al wat jaren oud maar heel leuk gepimpt en voorzien van nieuwe inbouwapparatuur. Aan de achterzijde van de woning is een uitbouw waar nu mooi plek is gemaakt voor de jassen en de schoenen. Slim! We lopen meteen even naar buiten want het is echt wel uniek hoe vrij je hier aan de achterzijde zit. De tuin is heel speels ingericht met zelfs een heel leuk kippenhok! (eventueel ter overname). De grote tafel met robuuste stoelen laten ook wel zien dat hier goed de ruimte voor is. De vrijstaande stenen berging is achterin de tuin gelegen en daar is een overkapping aangebouwd waar nu de fietsen gestald staan. Deze woning heeft precies geen achterpad waardoor de tuin nog dieper is. Leuk is het stalen sierhekwerk als achter toegang. De tuin is op het westen gelegen wat betekent dat je met name inde middag en avond heerlijk van het zonnetje kan genieten in de achtertuin.
Op naar boven via een mooie trap met houten tredes en een houten trapleuning. Mooi en sfeervol! Verrassend is de ruime overloop op de eerste verdieping met ook nog eens 3 echt fijne slaapkamers. De ouderslaapkamer is echt heerlijk raam zoals je wel op de foto’s kunt zien. De kinderkamers zijn prachtig ingericht wat wellicht wel een beetje verklapt wie hier woont. De eigenaresse maakt namelijk zelf prachtige muurschilderingen! Alle kamers zijn voorzien van elektrische rolluiken. De badkamer is aan de voorzijde gelegen en is heel speels ingedeeld waardoor er ook echt ruimte is voor een inloopdouche, een ligbad, een 2e toilet en een goed wastafelmeubel. Hoe slim!
Via een open trap komen we nog op de ruime 2e verdieping! Deze verdieping is aan de achterzijde voorzien van een dakkapel waardoor er 2 kamers zijn gecreëerd en daarbij nog eens fijne bergruimte op de vliering maar ook op de verdieping zelf. De werkkamer is voorzien van dit dakkapel. Op de overloop is ook een wastafelmeubel aanwezig. De kamer is ook voorzien van een elektrisch rolluik. De waskamer aan de voorzijde heeft op dit moment geen raam. Wanneer je dit zou realiseren is dit ook een goed 5e slaapkamer!
De overloop zelf is wel voorzien van een fijn dakraam en hier is ook de wasmachine en de droger gesitueerd.

Een leuke gezinswoning op een leuke plek! Je bent van harte welkom om de woning te komen bekijken!

Kaart

Kenmerken

Overdracht

Referentienummer
00410
Vraagprijs
€ 495.000,- k.k.
Inrichting
Ja
Inrichting
Gestoffeerd
Status
Verkocht
Aanvaarding
In overleg
Aangeboden sinds
Donderdag 16 oktober 2025
Laatste wijziging
Dinsdag 11 november 2025

Bouw

Type object
Woonhuis, eengezinswoning, tussenwoning
Soort bouw
Bestaande bouw
Bouwperiode
1998
Dakbedekking
Dakpannen
Type dak
Zadeldak
Isolatievormen
Dakisolatie
Dubbel glas
HR-glas
Muurisolatie
Spouwmuren
Vloerisolatie
Volledig geïsoleerd

Oppervlaktes en inhoud

Perceeloppervlakte
136 m²
Woonoppervlakte
118 m²
Inhoud
423 m³
Oppervlakte externe bergruimte
7 m²

Indeling

Aantal bouwlagen
3
Aantal kamers
6 (waarvan 5 slaapkamers)
Aantal badkamers
1 (en 1 apart toilet)

Tuin

Type
Achtertuin
Oriëntering
West
Heeft een achterom
Ja
Staat
Prachtig aangelegd
Tuin 2 - Type
Voortuin
Tuin 2 - Oriëntering
Oosten

Energieverbruik

Energielabel
B

CV ketel

CV ketel
Nefit
Warmtebron
Gas
Bouwjaar
2014
Combiketel
Ja
Eigendom
Eigendom

Uitrusting

Warm water
CV-ketel
Verwarmingssysteem
Centrale verwarming
Ventilatie methode
Mechanische ventilatie
Badkamervoorzieningen
Inloopdouche
Ligbad
Toilet
Wastafelmeubel
Glasvezelaansluiting aanwezig
Ja
Tuin aanwezig
Ja
Heeft schuur/berging
Ja
Heeft zonwering
Ja
Heeft ventilatie
Ja

Kadastrale gegevens

Kadastrale aanduiding
Putten N 3231
Perceeloppervlakte
136 m²
Omvang
Geheel perceel
Eigendomsituatie
Eigen grond